Notify me of more listings like this...

Create your own personal listing search:

  • Get a specialty tailored website for all your matched properties.
  • Get notified immediately as a new property matches your search criteria.
  • Track properties as they sell.
  • Follow market trends and stats.
  • Gain access to all property details.
Always FREE, Sign up in under 1 minute!

Get Started
Lot 9a Tom Curry's Point | $899,000 | MLS# 63610
Tamara Morton Agent Photo
Tamara
Morton
C. (242) 424-2949
P. (242) 702-8788
Phone Tamara tmorton@bhhsb.com www.tamaramorton.com
BERKSHIRE HATHAWAY HOMESERVICE

New Providence
Bahamas
MLS# 63610

Details

%
Years (35 year max)
Years



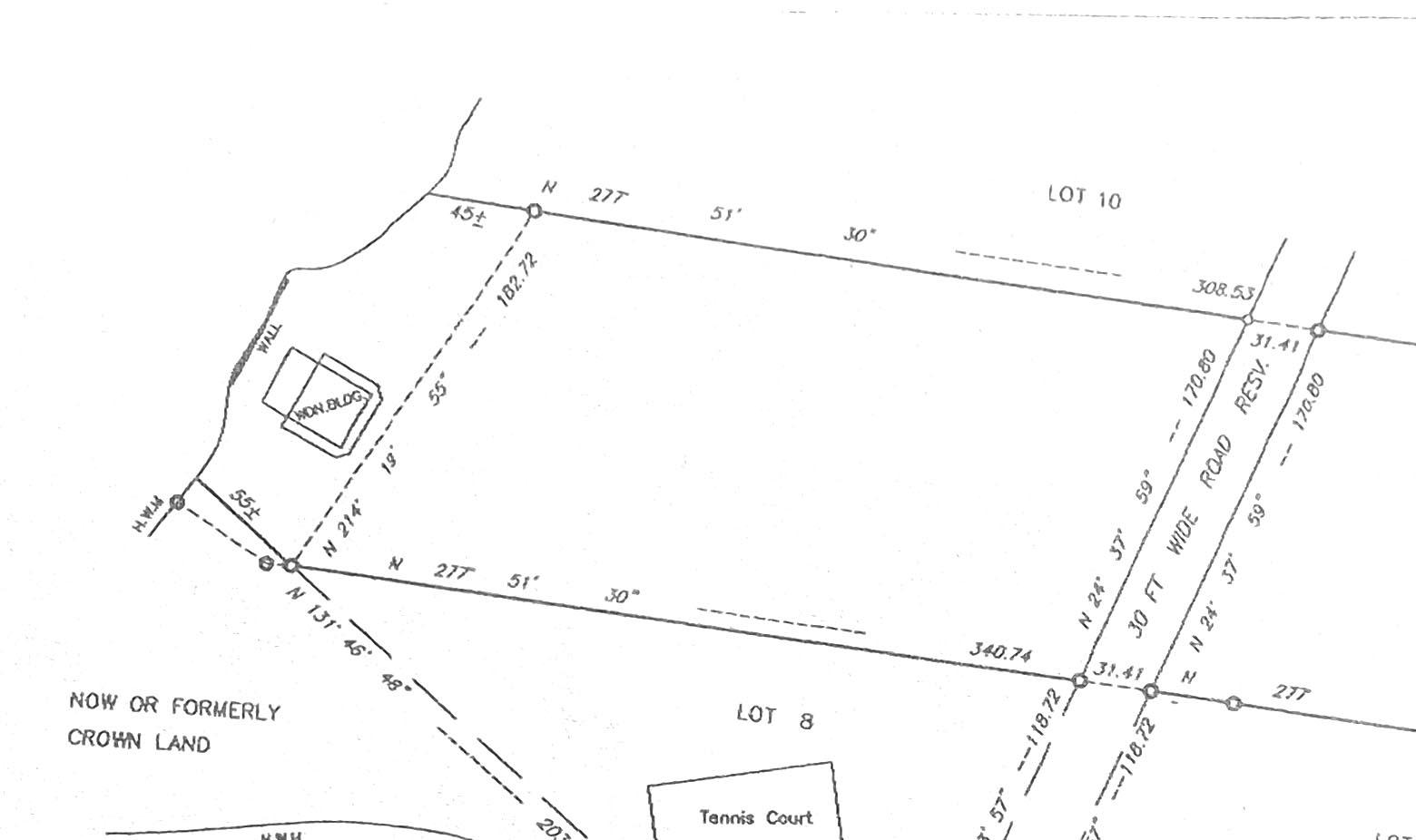
Address Lot 9a Tom Curry's Point
AreaAbaco
Sub AreaLittle Harbour
CountryBahamas
Price$899,000
Property TypeSingle Family Home
Bedrooms2
Bathrooms2
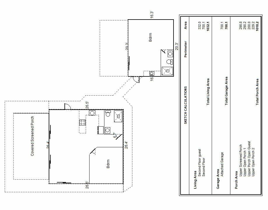
Floor Space1032 Square Feet
Lot Size1.42 Acres
Year Built2005
ParkingGarage - Single
MLS® #63610

With mesmerizing views of The Bight of Old Robinson, this elevated cozy 2b/2b, pod-style waterfront home in the friendly community of Little Harbour is on the market for the first time ever. Built in 2005 and then expanded in 2015, the estate blends comfort, functionality, and self-sufficiency in a spectacular island setting. 160 feet of shoreline, a small boat ramp & small boat basin at the back door, perfect for outdoor adventures of all kinds. A relaxing paddle or an exciting fly fish hunt to be had where this home overlooks the East Abaco Creeks National park - a haven for birdwatching, marine life, and peaceful paddling adventures. The main part of the home has 1 bdrm & 1 bthrm and comfy screened porch overlooking the sea. The guest bdrm pod has a full bathroom and a built-in kitchenette/wet bar. Offering 1,032 SF of air-conditioned living space over a 700 SF garage and workshop, including furniture and appliances. Construction: concrete slab ground floor, wood frame walls, asphalt roof. 20,000 gallons water storage, 18kw diesel generator, 18 PV panels, 48v Lithium batteries.


Listing Courtesy of the Bahamas MLS


Location

Use two fingers to move the map
Street View Satellite
Use two fingers to scroll demographics
Data Source: Statistics Canada
THE DATA PROVIDED SHOULD BE USED AS A GUIDE ONLY. FOR UP TO DATE REFERENCE MATERIAL, CONSULT WITH INDIVIDUAL REGIONAL WEBSITES.
(click to close)

About

Tamara Morton Bahamas Real Estate

Discover your dream property in The Bahamas with Tamara Morton, your luxury real estate expert. With a deep sense of local community and global perspective, Tamara brings a unique understanding of the subtle and the sublime to every property transaction. As a former marketing and merchandising professional for several of the world's most aspirational luxury brands, Tamara is well-equipped to help you find the perfect home that matches your lifestyle and taste. With 15 years of experience as a trusted wealth advisor to high-net-worth families, Tamara has the knowledge and expertise to guide you through even the most complex property transactions in the Bahamian regulatory environment. Contact Tamara today to experience the ultimate in luxury living in The Bahamas.

Mobile: 242.424.2949 | Phone: 242.702.8788 | www.tamaramorton.com

Next
The blue circle drawn on the map represents the area which is most likely to contain listings comparable to Lot 9a Tom Curry's Point. If you wish, you may adjust the circle by dragging the white center handle to move it, or dragging one of its other white handles to resize it. Press the 'Next' button at the top when finished.

Adjust the values below if necessary

Bedrooms
  • 1+
  • 2+
  • 3+
  • 4+
  • 5+
Bathrooms
  • 1+
  • 2+
  • 3+
  • 4+
  • 5+

When finished, press the 'Next' button


Done

When finished filling out your details, press the 'Done' button. You will receive an email shortly, which will contain login details and additional information to access your listings

Thank you! You will receive an email shortly, which will contain login details and additional information to access your listings. Close Oops, there was a problem signing up:

Try Again
Cancel